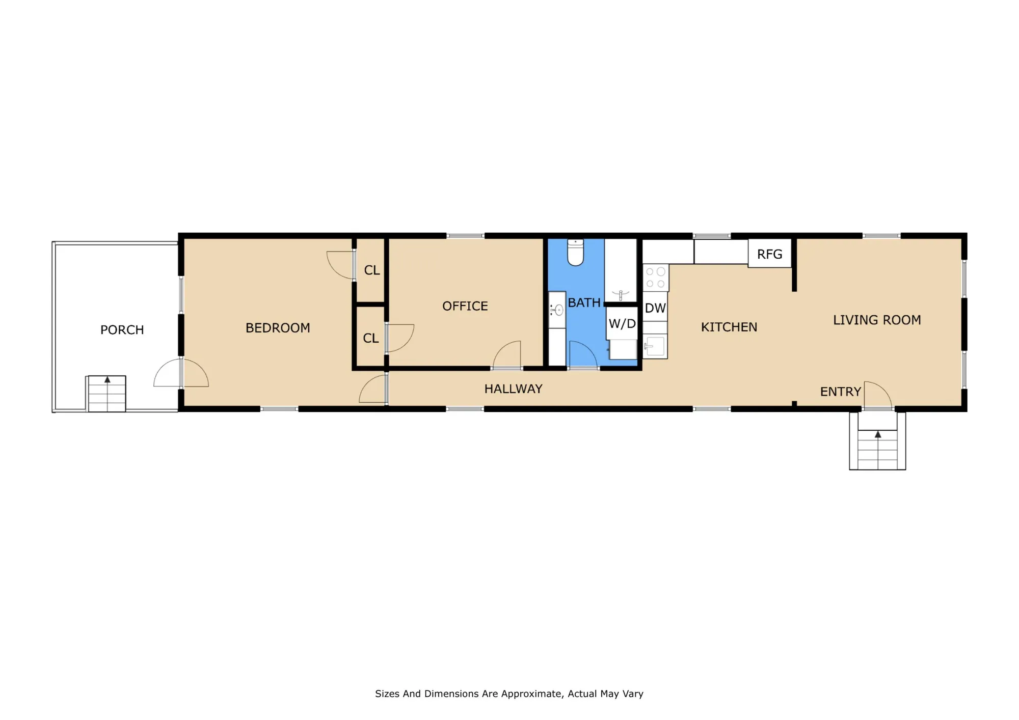
Charming side-hall shotgun home just off the St. Claude Corridor near the Bywater neighborhood. This classic New Orleans home features beautiful hardwood floors, 9-foot ceilings, and an abundance of natural light throughout. The thoughtfully designed layout offers 2 bedrooms and 1 full bath with convenient in home laundry. The kitchen opens seamlessly to the living area, creating an inviting space for everyday living and entertaining. Step outside to a covered back porch overlooking a spacious backyard perfect for relaxing, gardening, or gatherings. Additional features include a storage shed and rear yard access. Roof replaced in 2021. Enjoy all that this lively community has to offer, with popular restaurants, local shops, and neighborhood favorites just moments away.

















